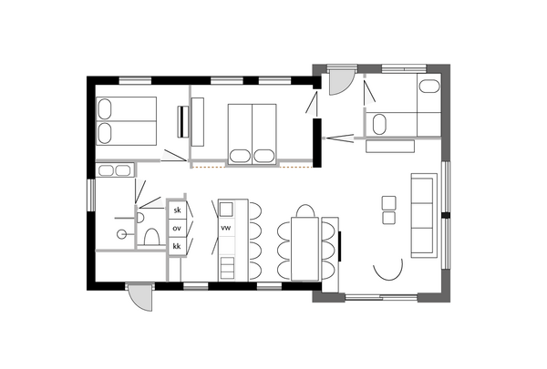
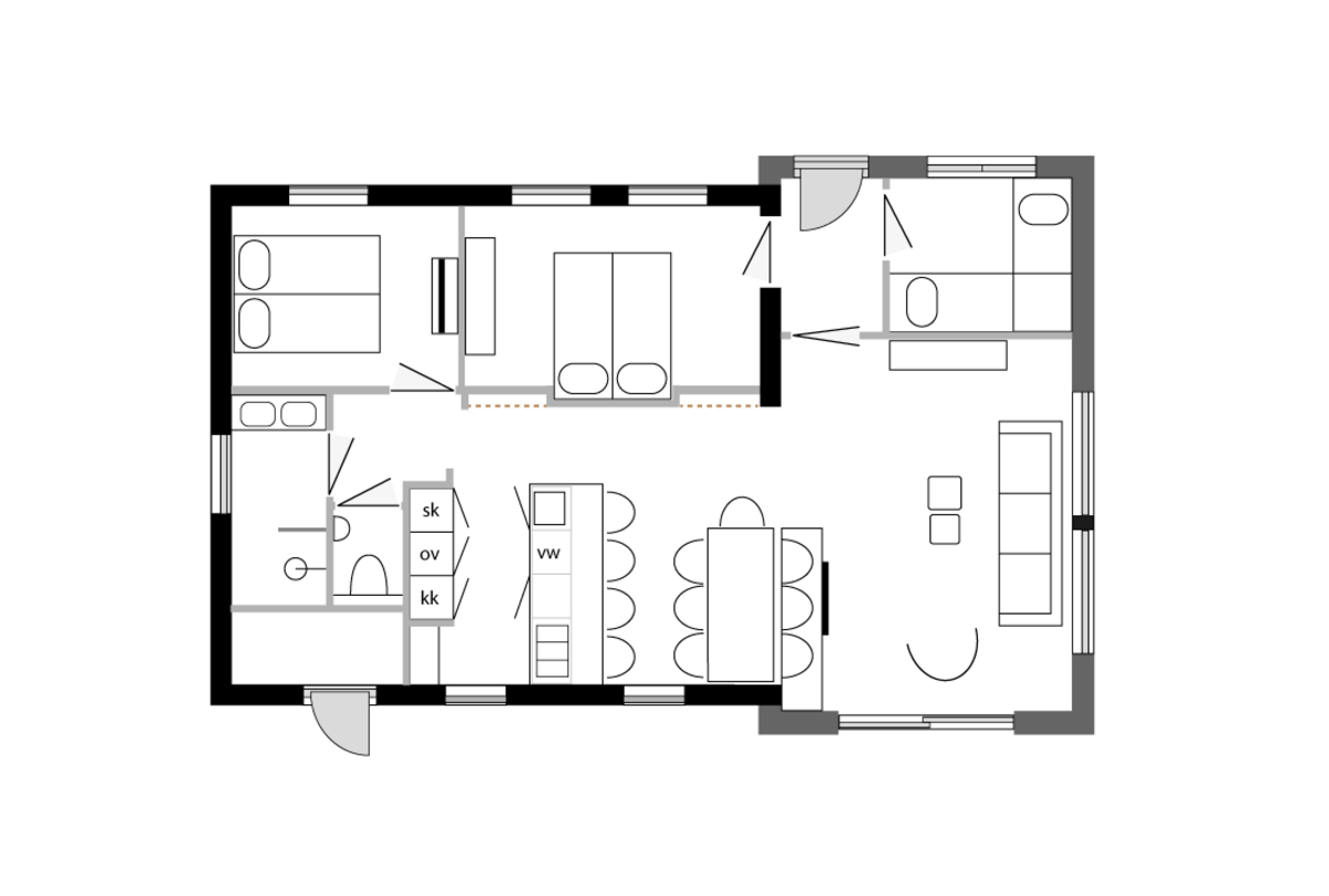
Inddeling
Inddeling
Denne moderne, fritliggende ferievilla er egnet til maksimalt 6 personer. Med en rummelig stue med stort åbent køkken med kogeø har du tilstrækkelig plads og luksus til at nyde din ferie. Hele stuen har gulvvarme, og i opholdsområdet er der et smart-tv. I det luksuriøse åbne køkken kan du lave en lækker kop kaffe eller te, opvaskemaskinen vasker op for dig, og i ovnen kan du lave de lækreste ovnretter. På grund af den praktiske, gennemtænkte indretning har feriehuset et rummeligt præg, men alt er i stueetagen. Der er tre soveværelser, hvoraf 1 soveværelse med to enkeltsenge (kan sættes sammen), et soveværelse med en 2-personers boxmadras og 1 soveværelse er udstyret med en cross-over køjeseng, meget sjovt for børnene! Der er også et rummeligt badeværelse med stor brusekabine og dobbelt håndvask. Toilettet er bevidst placeret separat ved siden af badeværelset.
Udenfor
Feriehuset ligger på en meget rummelig grund på 1000m2 med plads til 2 biler ved huset. Der er masser af privatliv, og du kan nyde den rummelige have. Med en møbleret terrasse kan du nyde solen. I haven er der alle mulige gemmesteder for børnene, en naturlig legeplads og en trampolin.
Ekstra
Der er en ladestation til elbilen, som du kan bruge mod betaling. Og du kan selvfølgelig bruge wifi gratis.
Der er også et skur, hvor du f.eks. kan stille cykler. Der er to stikkontakter til opladning af e-cykler.
Vi gør alt for at gøre dit ophold så behageligt som muligt.

